MONZA inizio Via Lecco - trilocale ristrutturato a nuovo

Monza | 245.000,00 | Mq 90 | 3 | 2 | 1

Descrizione

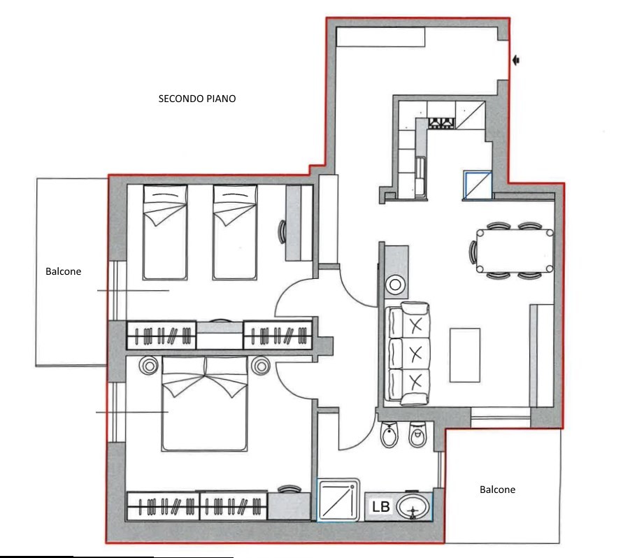
MONZA inizio Via Lecco - in zona ben servita a due passi dall'isola pedonale e dal Parco di Monza ed a meno di un chilometro dalla stazione ferroviaria di Monza Sobborghi, proponiamo in vendita un appartamento di tre locali completamente ristrutturato a nuovo. L'appartamento è posto al secondo piano con ascensore ed è composto da ingresso, soggiorno con balcone ed angolo cottura, due camere da letto delle quali una con balcone ed un bagno. Cantina al piano interrato. Possibilità box in vendita nel condominio prospiciente per euro 30.000. Riscaldamento centralizzato. Le spese condominiali ammontano a 2.400 euro/anno. C.E. E - IPE 149,06 kWh/mca

Dettagli

  • Riferimento: 3887
  • Tipologia: Appartamento
  • Comune: Monza
  • Zona: Via Lecco
  • Cucina: Cucina abitabile
  • Camere: 2
  • Bagni: 1
  • Box:
  • Piano:
  • Anno costruzione: 1960
  • Stato conservazione: Ristrutturato
  • Stato: Libero
  • Spese cond. annue €: 2.400,00
  • Riscaldamento: Centralizzato
  • Caratteristiche

    Ascensore, Balconi, Cantina, Giardino condominiale

    Efficienza energetica

    Classe E Ipe 149,06 KWh/m²a

    Via Cantore 2 Monza

    Richiedi informazioni

    039 6886010
    338 7123954

    Ai sensi e per gli effetti degli articoli 13 e 6 del Regolamento UE 2016/679, dichiaro di aver preso visione dell’informativa di STUDIO IMMOBILIARE B. E P. S.N.C. di ZANE FABRIZIO e C. per il trattamento dei dati personali.

    STUDIO IMMOBILIARE B. E P. S.N.C. di ZANE FABRIZIO e C.

    Via Repubblica, 11 - 20863 Concorezzo (MB) - Tel 039.6886010 Cell. 338.7123954


    MONZA inizio Via Lecco - trilocale ristrutturato a nuovo

    245.000,00 | Mq 90 | 3 | 2 | 1

    Via Cantore 2 Monza

    MONZA inizio Via Lecco - in zona ben servita a due passi dall'isola pedonale e dal Parco di Monza ed a meno di un chilometro dalla stazione ferroviaria di Monza Sobborghi, proponiamo in vendita un appartamento di tre locali completamente ristrutturato a nuovo. L'appartamento è posto al secondo piano con ascensore ed è composto da ingresso, soggiorno con balcone ed angolo cottura, due camere da letto delle quali una con balcone ed un bagno. Cantina al piano interrato. Possibilità box in vendita nel condominio prospiciente per euro 30.000. Riscaldamento centralizzato. Le spese condominiali ammontano a 2.400 euro/anno. C.E. E - IPE 149,06 kWh/mca

    Riferimento: 3887

    Tipologia: Appartamento

    Comune: Monza

    Zona: Via Lecco

    Cucina: Cucina abitabile

    Camere: 2

    Bagni: 1

    Box:

    Piano: 2°

    Anno costruzione: 1960

    Stato conservazione: Ristrutturato

    Stato: Libero

    Spese cond. annue €: 2.400,00

    Riscaldamento: Centralizzato

    Ascensore, Balconi, Cantina, Giardino condominiale

    Efficienza energetica
    Classe E Ipe 149,06 KWh/m²a